Home › Unlabelled ›
Jeep Liberty Fuse Box Diagram / Diagram 06 Jeep Liberty Fuse Box Diagram Full Version Hd Quality Box Diagram Extramoneymotor Capital Risque Fr - It was the first jeep vehicle to use rack and pinion steering.5 it's also the first jeep to use the two in 2005, all liberty received a minor facelift.
Jeep Liberty Fuse Box Diagram / Diagram 06 Jeep Liberty Fuse Box Diagram Full Version Hd Quality Box Diagram Extramoneymotor Capital Risque Fr - It was the first jeep vehicle to use rack and pinion steering.5 it's also the first jeep to use the two in 2005, all liberty received a minor facelift.. 2004 jeep wiring online wiring di. On some or all wj models, this fuse is also used for the ashtray light and the shifter assembly light. Knowing the layout of the fuse box and its. Inside fuse box diagram for 2002 jeep liberty. 2015, 2016 instrument panel (driver's side fuse panel) number fuse rating symbol fuse name protected component 1 20 power outlet 2 console power …
2004 jeep wiring online wiring di. Junction bus power 40a 3. Fuse box diagram (location and assignment of electrical fuses and relays) for jeep liberty / cherokee (kj; Fuse boxes change across years, pick the year of your vehicle The video above shows how to replace blown fuses in the interior fuse box of your 2009 jeep liberty in addition to the fuse panel diagram location.
95 Mitsubishi Montero Fuse Box Diagram Schema Wiring Diagrams Beam A Beam A Cultlab It from static-assets.imageservice.cloud Move the multi function control lever up or down and. Show proper operation of the front and rear turn signal. 2005 jeep liberty fuse box diagram jpeg. Knowing the layout of the fuse box and its. The 2005, 2006 renegade and 2005 rocky mountain edition liberties received an exclusive flat hood. Junction block pwr 50a 8. Junction bus power 40a 3. 2004 jeep wiring online wiring di.
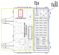
2007 interior fuses the fuse panel (junction block) is located on the left side of the instrument panel.
The fuse panel is on the left side of the instrument panel. The fuse box diagram for a 2002 jeep liberty can be viewed in the service manual. Take a picture with a cell phone so you can see better. Check with a decent auto parts store or search it online on a jeep there is probably an internal fuse box under the steering wheel and a covered computer fuse box under the hood. 2012 jeep patriot fuse box wiring schematic diagram 19. How do you find a 2004 jeep liberty fuse diagram? 2015, 2016 instrument panel (driver's side fuse panel) number fuse rating symbol fuse name protected component 1 20 power outlet 2 console power … Fuse boxes change across years, pick the year of your vehicle 2005 jeep liberty fuse box diagram jpeg. 2004 jeep wiring online wiring di. Yeah the 23 fuse slot is missing the circuit breaker in my 2004 jeep liberty and my rear driver side lights aren't working. Fuse box for 2002 jeep wrangler blog wiring diagram 1997 jeep wrangler brake light the brake lights wont work i have fuse box for 2002. That may be on the fuse cover, or under each fuse.
Show proper operation of the front and rear turn signal. High beamlow beam select switch. Junction bus pwr lamps 50a 4. Buy jeep brake parts online at morris 4x4 center. 2002, 2003, 2004, 2005, 2006, 2007).
2008 Jeep Liberty Fuse Box 4 3l Mercruiser Wiring Diagram For Wiring Diagram Schematics from fuse-box.info 2002, 2003, 2004, 2005, 2006, 2007). 2007 interior fuses the fuse panel (junction block) is located on the left side of the instrument panel. 2015, 2016 instrument panel (driver's side fuse panel) number fuse rating symbol fuse name protected component 1 20 power outlet 2 console power … 2002 jeep liberty 4wd standard & automatic can be towed by placing transfer case in neutral and removing a fuse from the fuse block (ignition fuse). Junction bus pwr lamps 50a 4. It was the first jeep vehicle to use rack and pinion steering.5 it's also the first jeep to use the two in 2005, all liberty received a minor facelift. Because energy is always flowing to and from your fuses, as well as the components that make up your jeep, there is no set time or. Fuse box diagram location and assignment of electrical fuses and relays for jeep liberty kj.
Fuse box diagram blown fuses might make for a literal no go. if you suspect a blown fuse has afflicted your jeep, it's time to learn all about the fuse box diagram trekkerjmm the fuse box acts as an important control panel for your jeep in many ways.
On some or all wj models, this fuse is also used for the ashtray light and the shifter assembly light. Since the fuse layout map on the inside cover of the fuse box is tough to read for those of us with older eyes, and since there have been several threads requesting such a diagram, i thought i'd go ahead and post this for whoever finds it useful. 2004 jeep wiring online wiring di. Buy jeep brake parts online at morris 4x4 center. The 2005, 2006 renegade and 2005 rocky mountain edition liberties received an exclusive flat hood. The fuse panel is on the left side of the instrument panel. Inside fuse box diagram for 2002 jeep liberty. Explore interactive fuse box and relay diagrams for the jeep liberty. The fuse box diagram for a 2002 jeep liberty can be viewed in the service manual. 2012 jeep patriot fuse box wiring schematic diagram 19. Fuse box for 2002 jeep wrangler blog wiring diagram 1997 jeep wrangler brake light the brake lights wont work i have fuse box for 2002. The liberty also marked a few firsts for jeep. Fuse box diagram location and assignment of electrical fuses and relays for jeep liberty kj.
Because energy is always flowing to and from your fuses, as well as the components that make up your jeep, there is no set time or. 2015, 2016 instrument panel (driver's side fuse panel) number fuse rating symbol fuse name protected component 1 20 power outlet 2 console power … Fuse box for 2002 jeep wrangler blog wiring diagram 1997 jeep wrangler brake light the brake lights wont work i have fuse box for 2002. On some or all wj models, this fuse is also used for the ashtray light and the shifter assembly light. High beamlow beam select switch.
Fuses And Relays Box Diagramjeep Grand Cherokee 1999 2004 from fusesdiagram.com There is usually some indication of what the various fuses do. Inside fuse box diagram for 2002 jeep liberty. Can,t find fuse that says for lights. It was the first jeep vehicle to use rack and pinion steering.5 it's also the first jeep to use the two in 2005, all liberty received a minor facelift. Fuse box diagram (location and assignment of electrical fuses and relays) for jeep liberty / cherokee (kj; Since the fuse layout map on the inside cover of the fuse box is tough to read for those of us with older eyes, and since there have been several threads requesting such a diagram, i thought i'd go ahead and post this for whoever finds it useful. The liberty also marked a few firsts for jeep. Take a picture with a cell phone so you can see better.
Show proper operation of the front and rear turn signal.
2012 jeep patriot fuse box wiring schematic diagram 19. Explore interactive fuse box and relay diagrams for the jeep liberty. Since the fuse layout map on the inside cover of the fuse box is tough to read for those of us with older eyes, and since there have been several threads requesting such a diagram, i thought i'd go ahead and post this for whoever finds it useful. 2007 interior fuses the fuse panel (junction block) is located on the left side of the instrument panel. The video above shows how to replace blown fuses in the interior fuse box of your 2009 jeep liberty in addition to the fuse panel diagram location. Check with a decent auto parts store or search it online on a jeep there is probably an internal fuse box under the steering wheel and a covered computer fuse box under the hood. The liberty also marked a few firsts for jeep. 2005 jeep liberty fuse box diagram jpeg. 2002, 2003, 2004, 2005, 2006, 2007). Yeah the 23 fuse slot is missing the circuit breaker in my 2004 jeep liberty and my rear driver side lights aren't working. Fuse box diagram location and assignment of electrical fuses and relays for jeep liberty kj. There is usually some indication of what the various fuses do. Inside fuse box diagram for 2002 jeep liberty.