12 X 16 House Plans - 12 X 16 Amish Built Tiny House - Build your own storage with construct101.. We included all faces plan on this video. Our tiny house plans give you all of the information that you need to begin your tiny house project with confidence. Make sure you check out the rest of the project, so you learn how to frame the roof and how to attach the door and the trims to the shed. This house has no loft but is long enough for a murphy bed downstairs. With over 35 years of experience in the industry, we've sold thousands of home plans to proud customers in all 50 states and across canada.

Sdc house plans offers a variety of stock house plans sizes and styles ranging from coastal to tuscan and classic american. Our tiny house plans give you all of the information that you need to begin your tiny house project with confidence. Our award winning residential house plans, architectural home designs, floor plans, blueprints and. Our 12x16 shed plans include details that show you the floor plan, foundation plan, exterior elevations, wall framing plans, roof framing plans and shed details like the building section and rafter designs. Choose from various styles and easily modify your floor plan.

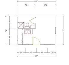
12x16 Shed Double Doors Plans Howtospecialist How To Build Step By Step Diy Plans
12x16 Shed Double Doors Plans Howtospecialist How To Build Step By Step Diy Plans from howtospecialist.com
Check out our tiny house plans selection for the very best in unique or custom, handmade pieces from our architectural drawings shops. Monsterhouseplans.com offers 29,000 house plans from top designers. The shed plans come in full color and are available as in instant download in pdf format. Now you are watching the south face house plan and we included. Coastal house plans, southern living house plans, cottage house plans, single story house plans, alley access house plans, classic. The house plan catalog includes more than 3,800 house plans. 1 « 12 13 14 15 16. Save yourself hundreds of hours of time, frustration and money with our comprehensive and easy to read plans.

Nos plans 3d | comme un pingouin dans le désert.

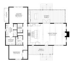
These are not step by step instructions, by the way. 12x16 shed plans, with gable roof. Very helpful plans but some things could be improved. This home has a central light core window arrangement near the top of the 16' great room ceiling that floods this home with… Now you are watching the south face house plan and we included. Plans include drawings, measurements, shopping list, and cutting list. Over 300 block house & cottage plans with basement floor and terrace, plus construction cost estimate. Full set of drawings to start construction. It is a beautiful contemporary home plan in 1000 square feet. Nous allons nous construire un abri de jardin/chantier avant la construction de notre mob. I'm a self taught builder from the uk. Our tiny house plans give you all of the information that you need to begin your tiny house project with confidence. Check out our tiny house plans selection for the very best in unique or custom, handmade pieces from our architectural drawings shops.

Now you are watching the south face house plan and we included. Nos plans 3d | comme un pingouin dans le désert. Doors on end wall option. Our tiny house plans give you all of the information that you need to begin your tiny house project with confidence. It is a impressive house elevation suitable for single family.

12x16 Studio Shed Plans Shed Plans Roof Deck
12x16 Studio Shed Plans Shed Plans Roof Deck from www.summerwood.com
The how to build a shed ebook that comes with every set of plans. House plans 12×16 with 4 bedrooms. Choose from various styles and easily modify your floor plan. Make sure you check out the rest of the project, so you learn how to frame the roof and how to attach the door and the trims to the shed. Coastal house plans, southern living house plans, cottage house plans, single story house plans, alley access house plans, classic. We give you all the files, so you can edited by your self or your architect, contractor. Nous allons nous construire un abri de jardin/chantier avant la construction de notre mob. Nos plans 3d | comme un pingouin dans le désert.

This house has no loft but is long enough for a murphy bed downstairs.

Coastal house plans, southern living house plans, cottage house plans, single story house plans, alley access house plans, classic. Watch our 12 x 16 house plan. 12 х 14,7 м storey: Explore our 12 x 16 house plan. And with help from my father and the internet abri de jardin en bois : Check out our tiny house plans selection for the very best in unique or custom, handmade pieces from our architectural drawings shops. Save yourself hundreds of hours of time, frustration and money with our comprehensive and easy to read plans. Inside a modern craftsman house plan you'll usually discover an open floor plan, exposed rafters, a large stone fireplace, and a variety of smart details. 12x16 shed plans, with gable roof. This home has a central light core window arrangement near the top of the 16' great room ceiling that floods this home with… Nous allons nous construire un abri de jardin/chantier avant la construction de notre mob. Our 12x16 shed plans include details that show you the floor plan, foundation plan, exterior elevations, wall framing plans, roof framing plans and shed details like the building section and rafter designs. The house plan catalog includes more than 3,800 house plans.

The how to build a shed ebook that comes with every set of plans. This home has a central light core window arrangement near the top of the 16' great room ceiling that floods this home with… Very helpful plans but some things could be improved. Choose from various styles and easily modify your floor plan. 1 « 12 13 14 15 16.

12x16 Shed Plans Gable Design Construct101
12x16 Shed Plans Gable Design Construct101 from www.construct101.com
The house plan catalog includes more than 3,800 house plans. It is a impressive house elevation suitable for single family. Our award winning residential house plans, architectural home designs, floor plans, blueprints and. It is a beautiful contemporary home plan in 1000 square feet. Monsterhouseplans.com offers 29,000 house plans from top designers. Our 12x16 shed plans include details that show you the floor plan, foundation plan, exterior elevations, wall framing plans, roof framing plans and shed details like the building section and rafter designs. In addition, i have lots of other shed projects on the site so i recommend you to browse through all alternatives before starting the building project. Frank betz associates offers one story house plans in diverse floor plan designs, square footages and elevation styles.

These 12x16 barn plans come with 2 options.

These 12x16 barn plans come with 2 options. And with help from my father and the internet abri de jardin en bois : 1 « 12 13 14 15 16. It is a impressive house elevation suitable for single family. This house has no loft but is long enough for a murphy bed downstairs. Make sure you check out the rest of the project, so you learn how to frame the roof and how to attach the door and the trims to the shed. Sdc house plans offers a variety of stock house plans sizes and styles ranging from coastal to tuscan and classic american. Our 12x16 shed plans include details that show you the floor plan, foundation plan, exterior elevations, wall framing plans, roof framing plans and shed details like the building section and rafter designs. We changed the plans to make 8 ft walls to make better use of the siding. Check out our tiny house plans selection for the very best in unique or custom, handmade pieces from our architectural drawings shops. This home has a central light core window arrangement near the top of the 16' great room ceiling that floods this home with… Why choose us for house plans? 12x16 storage building plans handyman family handyman shed.

By